5 Pièces Charme de l'ancien Parquet Moulures Cheminées
Prix
700 000 €
Ref 6647S
Description de l'offre
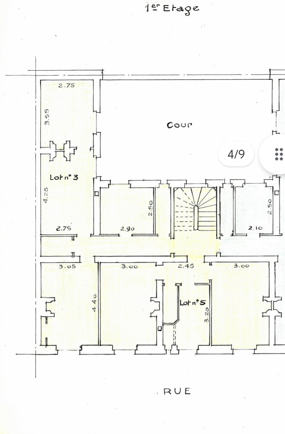
Exclusivité STI ; Charme de l'ancien garantit ; Dans un bel immeuble, très bien entretenu, venez découvrir cet appartement traversant aux charmes de l'ancien ; joli parquet, moulures, cheminées. Situé dans une rue extrêmement calme, dans le quartier Villa Deshayes / Villa Duty / Villa Mallebay , village Didot, toutes commodités et tous commerces à proximité. Modulable à souhaits (double séjour possible 26m²), traversant, sur rue calme et cour, il propose 3 expositions. L'appartement est ainsi composé ; entrée confortable, 3 chambres, une salle à manger, un séjour, nombreux rangements, salle de bains, WC séparées, un bureau, une buanderie, cuisine séparée équipée. Une cave vient compléter le bien. Un appartement familial qui permet de vivre sans encombres avec un plan modulable. Bonne circulation entre les pièces. Immeuble très bien entretenu, sécurisé, double porte - SAS avec interphone, porte d’appartement blindée. A voir rapidement. Deux caves viennent compléter ce bien. Transports à proximité ; Métro Ligne 4, Ligne 13, Tram, Bus 58.
Description du bien
5
Pièces
87.26
m²
3
Chambres
| Label | Value |
|---|---|
| Code postal | 75014 |
| Surface habitable (m²) | 87,26 m² |
| Surface loi Carrez (m²) | 87,26 m² |
| Nombre de chambre(s) | 3 |
| Nombre de pièces | 5 |
| Etage | 1 |
| Ascenseur | OUI |
| Vue | sur cour et sur rue calme |
| Label | Value |
|---|---|
| Nb de salle de bains | 2 |
| Cuisine | SEPAREE |
| Mode de chauffage | Gaz de ville |
| Type de chauffage | TRAD_TYPE_CHAUFF_CHAUDIERE |
| Format de chauffage | Individuel |
| Interphone | OUI |
| Cave | OUI |
| Surface cave (m²) | 5 |
| Exposition | SUD |
| Année de construction | 1900 |
| Label | Value |
|---|---|
| Copropriété | OUI |
| Lot n° | 5 |
| nombre de lots | 25 |
| Quote Part annuelle des charges | 2 450 € |
| plan de sauvegarde | NON |
| statut du syndic | pas de procédure en cours |
| Label | Value |
|---|---|
| Prix de vente honoraires TTC inclus | 700 000 € |
| Prix de vente honoraires TTC exclus | 668 500 € |
| Honoraires TTC à la charge acquéreur | 4,71 % |
| Charges | 202 € |
| Taxe foncière annuelle | 1 400 € |
Montant estimé des dépenses annuelles d'énergie pour un usage standard est compris entre 1 200 € et 2 000 € . Prix moyens des énergies indexés sur les années 2021, 2022 et 2023 (abonnements compris).
| Label | Value |
|---|
Contacter l'agence
* : Les informations recueillies sur ce formulaire sont enregistrées dans un fichier informatisé par La Boite Immo agissant comme Sous-traitant du traitement pour la gestion de la clientèle/prospects de l'Agence / du Réseau qui reste Responsable du Traitement de vos Données personnelles.
La base légale du traitement repose sur l'intérêt légitime de l'Agence / du Réseau.
Elles sont conservées jusqu'à demande de suppression et sont destinées à l'Agence / au Réseau.
Conformément à la loi « informatique et libertés », vous disposez des droits d’accès, de rectification, d’effacement, d’opposition, de limitation et de portabilité de vos données. Vous pouvez retirer votre consentement à tout moment en contactant directement l’Agence / Le Réseau.
Consultez le site https://cnil.fr/fr pour plus d’informations sur vos droits.
Si vous estimez, après avoir contacté l'Agence / le Réseau, que vos droits « Informatique et Libertés » ne sont pas respectés, vous pouvez adresser une réclamation à la CNIL.
Nous vous informons de l’existence de la liste d'opposition au démarchage téléphonique « Bloctel », sur laquelle vous pouvez vous inscrire ici : https://www.bloctel.gouv.fr
Dans le cadre de la protection des Données personnelles, nous vous invitons à ne pas inscrire de Données sensibles dans le champ de saisie libre.
Ce site est protégé par reCAPTCHA, les Politiques de Confidentialité et les Conditions d'Utilisation de Google s'appliquent.
